
電話:86 0512 57779367
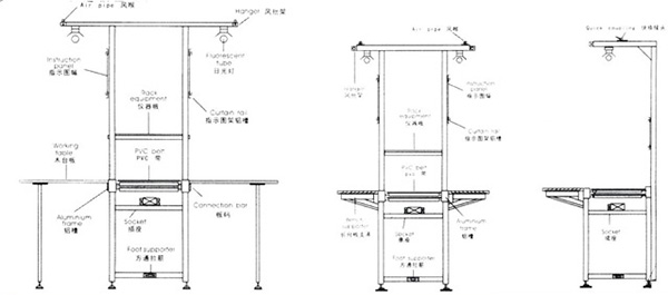
皮帶線廣泛應用于電子、五金、塑膠等行業(yè)裝配輸送場合??筛鶕箪`活設計制作。

防靜電PVC皮帶線 皮帶線

轉彎皮帶機 90o轉彎皮帶機

皮帶線 皮帶機

木材家具業(yè) 食品行業(yè)
印刷行業(yè)

自動化裝配檢測生產線以及非標準專機設備